İçeriğe atla
  • Ana Sayfa
  • Hakkımızda
  • Hizmetlerimiz
  • Projeler
  • Galeri
  • İletişim
logo_Asset-1.png
İletişime Geç

Galeri

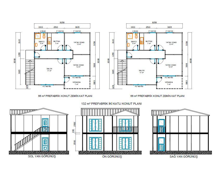
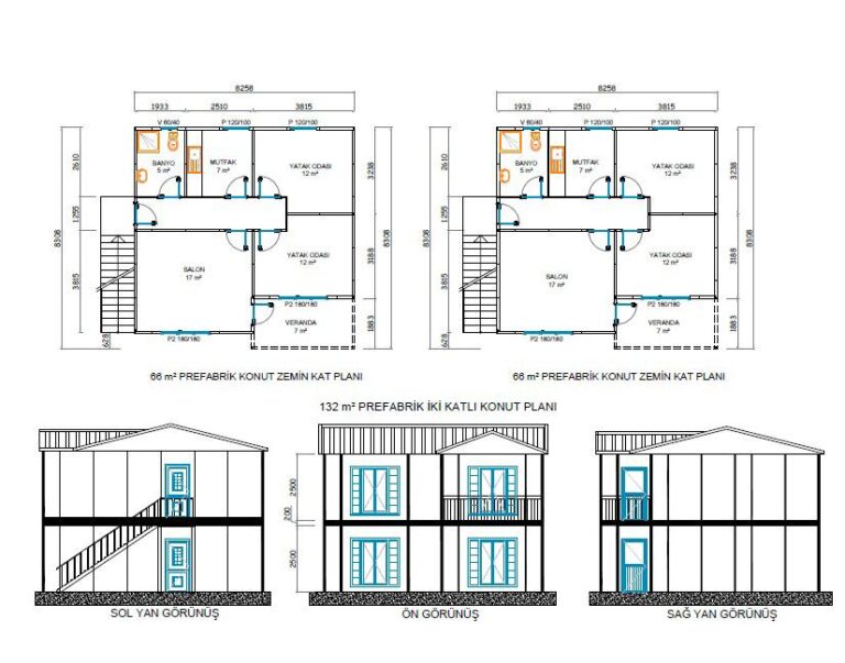
Prefabrik yapılar, deprem, sel gibi doğal afetlere karşı dayanıklı olacak şekilde tasarlanabilir.
Instagram

İletişim

  • Yıldızlı Mahallesi 1342 Nolu Sokak No: 13/C Yıldızlı-Akçaabat TRABZON
  • +90 (506) 068 83 46
  • info@3uz-prefabrik.com
  • 09.00 - 17.00

Hızlı Linkler

Menu
  • Ana Sayfa
  • Hakkımızda
  • Hizmetlerimiz
  • Projeler
  • Galeri
  • İletişim

Copyright © 2026 fluSofware | Tüm hakları saklıdır.